店舗賃料相場で飲食店舗物件を探す
OPENでは従来の店舗物件検索の枠で出店を考えるのではなく、開業する店舗のイメージや来店客のイメージにあった店舗物件探しができます。
該当物件は 85件 です。
【浄水通】高級住宅街の新築約24.70坪1棟貸物件
賃料:48万円(税別)
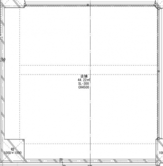
81.68㎡/約24.70坪
81.68㎡/約24.70坪
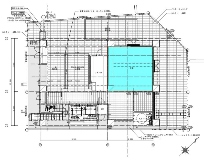
建築予定地
建築予定地
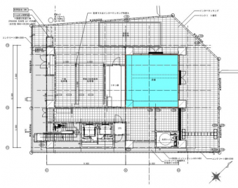
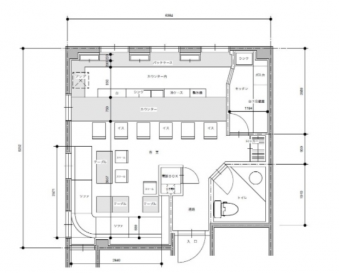
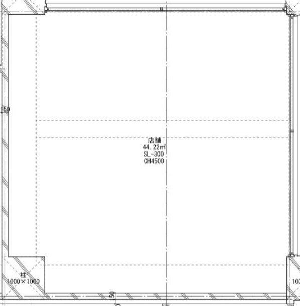
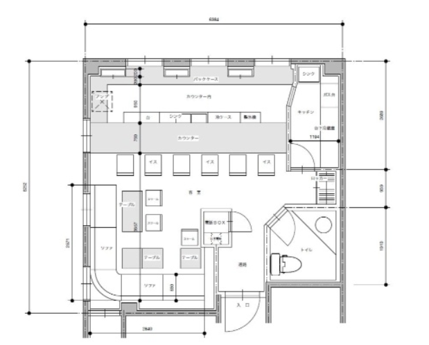
敷地図面
図面
人気の浄水通り沿い、1戸建の新築です。
早いタイミングであれば費用増加の無い範囲で建物形状や配置等、ご希望の通りに建築可能です!
現状更地ですので自由度の高い設計が可能です
早いタイミングであれば費用増加の無い範囲で建物形状や配置等、ご希望の通りに建築可能です!
現状更地ですので自由度の高い設計が可能です

























































