【住吉2丁目】櫛田神社前駅徒歩9分、約24.2坪、スケルトン渡し物件
賃料 66.55万円
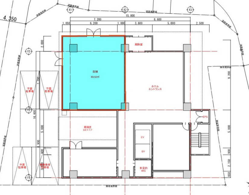
壁芯80.02㎡ / 約24.2坪
壁芯80.02㎡ / 約24.2坪
外観
間取り図
間取り図
飲食店舗物件詳細
| 現況(業態) | 未完成 |
|---|---|
| 可能用途 | - |
| 設備 | プロパンガス |
| 契約条件 | 普通借家契約 3年 |
| 手数料負担 | 敷金 無
礼金 3ヶ月 |
| 取引態様 | 仲介 |
| 物件種目 | - | 物件名 | 住吉2丁目ホテルPJ |
|---|---|---|---|
| 物件所在地 | 福岡市博多区住吉2丁目17-57 | 建物構造 | RC
地上10階建/1階部分 |
| 築年月 | 2027[R9]年3月(新築) | 使用部分面積 | 壁芯80.02㎡ / 約24.2坪 |
| 交通 | 福岡市七隈線櫛田神社前駅 徒歩9分
福岡市七隈線渡辺通駅 徒歩12分 福岡市空港線祇園駅 徒歩14分 |
情報登録日 | 2026/04/24 |
| 備考 | 造作譲渡:無
更新料 旧賃料30000円 スケルトン渡し 未入居 保証人不要 短期解約違約金:1年未満家賃2ヶ月、1年以上2年未満家賃1ヶ月 解約予告:6ヶ月前予告 【注意事項】 ・1階トイレはホテル専用です。トイレはテナント内に設置していただきます。 ・看板設置料は別途相談 ・保証会社未契約時(貸主判断):敷金6ヶ月追加 ・退去時:スケルトン返し(原状回復義務あり) 家賃保証会社 有 株式会社Casa ※契約者や条件によっては、内容が変更になる場合があります。 家賃保証・保証費用等 初回保証料は賃料等の100%、年間保証料は賃料等の10% 保険 有 ※契約者や条件によっては、内容が変更になる場合があります。 |
|---|
この飲食店舗物件を見た方は下記の飲食店物件もお勧めです
-
【博多駅前4丁目】博多駅 徒歩12分、約17.43坪、カフェ居抜き物件
-
【住吉2丁目】櫛田神社前駅徒歩7分、12.7坪、新築1階路面店
-
【中呉服町7丁目】呉服町駅徒歩4分、約31.14坪、人気エリアの飲食可能物件
-
【博多駅東1丁目】博多駅徒歩8分、約10.71坪、スケルトン物件
この飲食店舗物件についてお問い合わせする
- お問い合わせ物件
- 【住吉2丁目】櫛田神社前駅徒歩9分、約24.2坪、スケルトン渡し物件賃料 66.55万円 壁芯80.02㎡ / 約24.2坪
































