【下川端町】中洲川端駅 徒歩2分 / 約33.66坪 / スケルトン物件です!
賃料 70.3494万円
壁芯111.28㎡ / 約33.66坪
壁芯111.28㎡ / 約33.66坪
外観
外観
内観
内観
内観
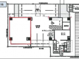
間取り図
飲食店舗物件詳細
| 現況(業態) | 空家 |
|---|---|
| 可能用途 | - |
| 設備 | トイレ 24時間セキュリティ 個別空調 |
| 契約条件 | 2年 |
| 手数料負担 | 敷金 8ヶ月 / 562.7952万円
礼金 無 |
| 取引態様 | 仲介 |
| 物件種目 | - | 物件名 | CIRCLES中洲川端 1F |
|---|---|---|---|
| 物件所在地 | 福岡市博多区下川端町10-9 | 建物構造 | 鉄骨造
地上14階建 / 1階部分 |
| 築年月 | 2024[R6]年4月 (築1年9ヶ月) | 使用部分面積 | 壁芯111.28㎡ / 約33.66坪 |
| 交通 | 福岡市空港線中洲川端駅 徒歩2分
福岡市箱崎線中洲川端駅 徒歩2分 |
情報登録日 | 2025/12/09 |
| 備考 | 駐車場 空無
造作譲渡:無 共益費 11万1078円 飲食店可 家賃保証会社 有 マリン保証(条件により金額が異なる場合があります。) ※契約者や条件によっては、内容が変更になる場合があります。 家賃保証・保証費用等 賃料+共益費80% 保険 有 ※契約者や条件によっては、内容が変更になる場合があります。 |
|---|
この飲食店舗物件を見た方は下記の飲食店物件もお勧めです
-
【博多駅前4丁目】美野島1丁目バス停徒歩3分 / 1フロア約17坪 / 地上8階建て新築デザイナーズテナントビル6階部分のスケルトン渡し物件です!
-
【寿町2丁目】南福岡駅徒歩1分 / 約13.06坪 / スケルトン渡しの物件です!
-
【神屋町】呉服町駅 徒歩12分 / 約23.86坪 / 新築物件です!
-
【博多駅南5丁目】竹下駅徒歩圏内 / 約27.05坪 / 現状渡しの物件です!
この飲食店舗物件についてお問い合わせする
- お問い合わせ物件
- 【下川端町】中洲川端駅 徒歩2分 / 約33.66坪 / スケルトン物件です!賃料 70.3494万円 壁芯111.28㎡ / 約33.66坪



































