【薬院2丁目】薬院大通駅徒歩1分、約15.36坪、1階路面店
賃料 50.688万円
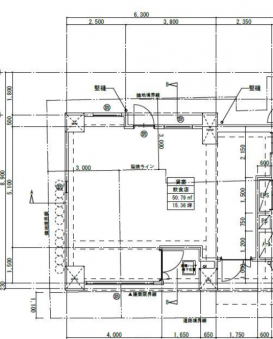
壁芯50.79㎡ / 約15.36坪
壁芯50.79㎡ / 約15.36坪
外観
内観
内観
間取り図
飲食店舗物件詳細
| 現況(業態) | 居住中 |
|---|---|
| 可能用途 | - |
| 設備 | 看板取付スペースあり
プロパンガス |
| 契約条件 | 定期借家3年 |
| 手数料負担 | 敷金/保証金:92.16万円/なし
礼金:なし |
| 取引態様 | 仲介 |
| 物件種目 | - | 物件名 | OAK VILLA BUREAU 薬院大通 101 |
|---|---|---|---|
| 物件所在地 | 福岡市中央区薬院2丁目1-5 | 建物構造 | RC
地上9階建/1階部分 |
| 築年月 | 2024[R6]年4月 (築2年1ヶ月) | 使用部分面積 | 壁芯50.79㎡ / 約15.36坪 |
| 交通 | 福岡市七隈線薬院大通駅 徒歩1分
西鉄天神大牟田線薬院駅 徒歩6分 西鉄天神大牟田線西鉄福岡(天神)駅 徒歩18分 |
情報登録日 | 2026/04/28 |
| 備考 | 共益費 3万3792円
設備 プロパンガス バルコニー ※当該資料と現状が異なる場合は現状を優先とさせていただきます。 ※定期借家契約3年 ※業務委託料:100% ※契約事務手数料:8,800円 ※再契約事務手数料:55,000円 ※短期解約違約金:1年未満での解約は賃料+共益費1ヶ月分 ※インフォメーションボード代13,200円 ※内装図面要提出 ※福岡市福祉のまちづくり条例事前協議書要提出 家賃保証会社 有 あんしん保証(契約者や条件によって内容が変更となる場合があります。) ※契約者や条件によっては、内容が変更になる場合があります。 家賃保証・保証費用等 初回100%、月額1%、年更新10% 保険 有 ※契約者や条件によっては、内容が変更になる場合があります。 |
|---|
この飲食店舗物件を見た方は下記の飲食店物件もお勧めです
-
【天神2丁目】天神西通り沿い、約50.25坪、スケルトン渡しの路面店舗
-
【舞鶴3丁目】赤坂駅徒歩4分、約18.17坪、スケルトン渡しの物件
-
【大名2丁目】旧大名小学校の近く!ガラス張り2階店舗!
-
【今泉2丁目】薬院大通駅徒歩6分 / 約12.71坪 / 新築物件です!
この飲食店舗物件についてお問い合わせする
- お問い合わせ物件
- 【薬院2丁目】薬院大通駅徒歩1分、約15.36坪、1階路面店賃料 50.688万円 壁芯50.79㎡ / 約15.36坪

































