【大名1丁目】西鉄福岡(天神)駅徒歩7分、12.92坪、路面店スケルトン物件
賃料 34.23万円
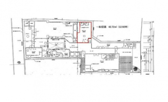
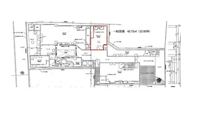
42.72m²/12.92坪
42.72m²/12.92坪
外観
外観
共用部
共用部
間取り図
飲食店舗物件詳細
| 現況(業態) | 空家 |
|---|---|
| 可能用途 | - |
| 設備 | エレベーター2基以上 |
| 契約条件 | 定期借家5年 |
| 手数料負担 | 敷金 6ヶ月
礼金 なし |
| 取引態様 | 仲介 |
| 物件種目 | - | 物件名 | サウスサイドテラス 1F-B2 |
|---|---|---|---|
| 物件所在地 | 福岡市中央区大名1丁目1−38 | 建物構造 | RC
地上5階地下1階建 / 1階 |
| 築年月 | 1999年6月(築26年11ヶ月) | 使用部分面積 | 42.72m²/12.92坪 |
| 交通 | 地下鉄空港線 / 天神駅 徒歩10分
西鉄天神大牟田線 / 西鉄福岡(天神)駅 徒歩7分 地下鉄七隈線 / 天神南駅 徒歩9分 |
情報登録日 | 2026/04/28 |
| 備考 | 管理費等 45,220円
看板使用料(税込み):35,000円/月 ごみ処理費(税込み):2,000円/月 〈リフォーム履歴〉 ■外装:2020年3月 外壁 共用看板 ■共用部の大規模修繕工事:2020年3月 ファサード、看板、コリドーなど ※実施年月は最も古い履歴を表示 賃貸保証等:加入要(保証会社による) 業種応相談【月額坪単価※税抜き】賃料@26,500円 共益費@3,500円 看板使用料35,000円/月 ごみ処理費用2,000円~/月※業種により異なります その他条件に関しても柔軟に相談可能 |
|---|
この飲食店舗物件を見た方は下記の飲食店物件もお勧めです
-
お洒落な薬院エリア
-
【大名1丁目】赤坂駅徒歩4分、約247.69坪、重飲食可能物件
-
【春吉3丁目】天神南駅 徒歩6分、約13坪、居抜物件
-
【今泉2丁目】薬院大通駅徒歩6分 / 約15.24坪 / 新築物件です!今泉2丁目1階店舗 C
この飲食店舗物件についてお問い合わせする
- お問い合わせ物件
- 【大名1丁目】西鉄福岡(天神)駅徒歩7分、12.92坪、路面店スケルトン物件賃料 34.23万円 42.72m²/12.92坪


































