【北原1丁目】九大学研都市駅徒歩5分、約60.50坪、商業モール1階スケルトン物件
賃料 1,397,605円
契約面積 200㎡(60.50坪)
契約面積 200㎡(60.50坪)
外観
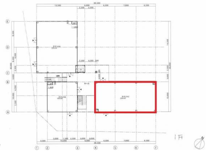
平面図
周辺環境
飲食店舗物件詳細
| 現況(業態) | 入居中 |
|---|---|
| 可能用途 | - |
| 設備 | 都市ガス |
| 契約条件 | 定期契約期間 10年(再契約型) |
| 手数料負担 | 敷金 6ヶ月 |
| 取引態様 | 仲介 |
| 物件種目 | - | 物件名 | Y’s GARDEN伊都 |
|---|---|---|---|
| 物件所在地 | 福岡県福岡市西区北原1-9-7 | 建物構造 | 鉄骨造
地上2階建 / 地上1階 C-1号室 |
| 築年月 | 2009(平成21)年 11月 | 使用部分面積 | 契約面積 200㎡(60.50坪) |
| 交通 | JR筑肥線九大学研都市駅 徒歩5分
昭和バス九大学研都市駅 徒歩4分 |
情報登録日 | 2026/02/26 |
| 備考 | 駐車場 空有(5台)
スケルトン渡し 専用駐車場あり平置き5台(店舗前面) NG業種:ジム(振動のある業種)、エステ、美容室、塾、風営法許可が必要な業種、 ガールズバー、カラオケ、同一施設内同一業種、福祉系施設 解約予告:6ヶ月 短期解約違約金:1年未満敷金30%2年未満敷金20% |
|---|
この飲食店舗物件を見た方は下記の飲食店物件もお勧めです
-
【飯倉3丁目】原二丁目バス停 徒歩3分、飲食店相談可約43坪の物件です
-
【和白丘3丁目】香椎線和白駅徒歩12分、建物使用面積約169.5坪、国道495号線沿いの物件
-
【有田2丁目】次郎丸駅徒歩圏内、約20.5坪、重飲食相談可のスケルトン物件
-
【大橋2丁目】大橋駅徒歩6分 、1階路面店約20.96坪の物件です
この飲食店舗物件についてお問い合わせする
- お問い合わせ物件
- 【北原1丁目】九大学研都市駅徒歩5分、約60.50坪、商業モール1階スケルトン物件賃料 1,397,605円 契約面積 200㎡(60.50坪)
































