【須恵】新原駅徒歩圏内、約198.19坪、駐車場ありの1階物件
賃料 2,200,000円(税込)
契約面積 655.19m²(198.19坪)
契約面積 655.19m²(198.19坪)
外観
外観
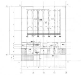
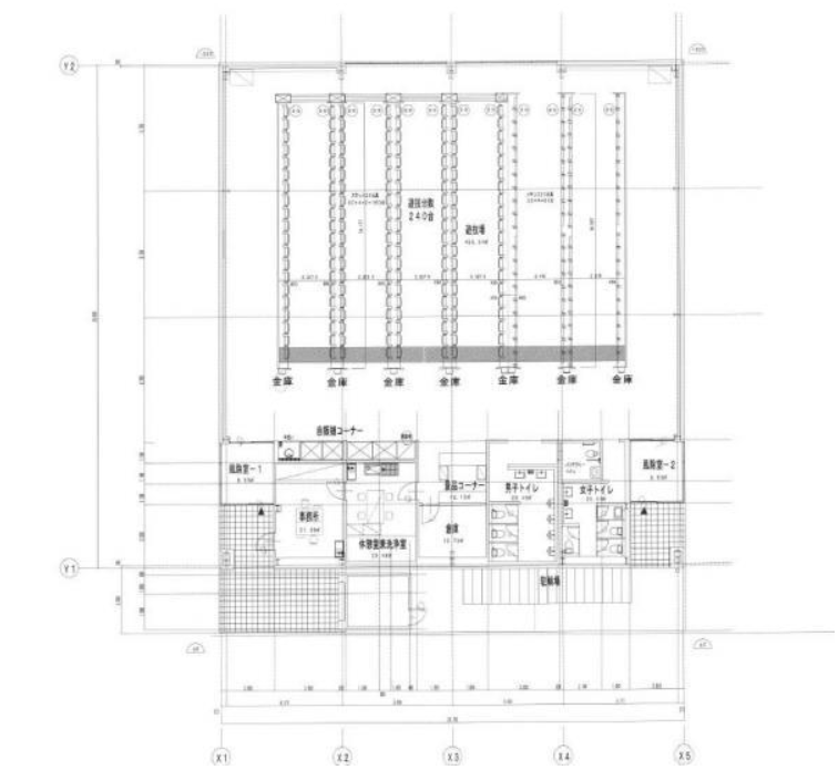
平面図
周辺環境
飲食店舗物件詳細
| 現況(業態) | 空室 |
|---|---|
| 可能用途 | - |
| 設備 | - |
| 契約条件 | 定期借家5年 |
| 手数料負担 | 敷金 3ヶ月 |
| 取引態様 | 仲介 |
| 物件種目 | - | 物件名 | 新洋須恵店舗 |
|---|---|---|---|
| 物件所在地 | 福岡県糟屋郡須惠町須惠1098-1 | 建物構造 | 鉄骨造 |
| 築年月 | 2013(平成25)年 01月 | 使用部分面積 | 655.19m²(198.19坪) |
| 交通 | JR香椎線新原駅 徒歩10分 | 情報登録日 | 2026/02/26 |
| 備考 | 駐車場は敷地内テナントとの共用駐車場
電気:エコログ電気 水道:須恵町役場上下水道課 ガスなし |
|---|
この飲食店舗物件を見た方は下記の飲食店物件もお勧めです
-
【平尾3丁目】カフェバー居抜き、1階路面店約17.05坪の物件です
-
【周船寺1丁目】周船寺駅徒歩1分 / 約15.74坪 / 駐車場ありのスケルトン物件です!
-
【大橋1丁目】大橋駅 徒歩1分 / 約13.10坪 / 土日祝利用可能なスケルトン渡しの物件です!
-
【樋井川3丁目】上長尾バス停 徒歩2分、ミスターマックス1号店前、1階路面店約21.17坪の物件です
この飲食店舗物件についてお問い合わせする
- お問い合わせ物件
- 【須恵】新原駅徒歩圏内、約198.19坪、駐車場ありの1階物件賃料 2,200,000円(税込) 契約面積 655.19m2(198.19坪)

































